|   
				
				Kühl-/Tiefkühlzelle 80 
				1 STK  
				
				Aussenbreite 2.400 mm Aussenlänge 2.100 mm Aussenhöhe 2.110 mm 
				
				Zellentyp: Tecto Standard Plus 
				
				Elementverbindung mit Nut/Feder und Exzenter-Spannschlössern 
				
				von innen zu betätigen (Innenmontage). 
				
				Die Stöße der Wandelemente sind mit Tecto-Überlappung und 
				
				damit besonders hygienisch. 
				
				Die Ecken der Zellenwände sind innen mit einem vollhygienischen 
				Radius ausgeführt. 
				
				Wandstärke: 80 mm starke Wärmedämmung der Zellenelemente, 
				Polyurethan-Hartschaum mit Cyclopentan geschäumt 
				
				Wärmedämmung: Schaumdichte = 40 kg/m³ 
				
				U-Wert 0,25 W/m² K gemäß DIN EN 13165 
				
				Smart Protec®, weiß, antibakt. 
				
				Front aussen,Front innen,Rückwand aussen,Rückwand innen 
				
				Wand links aussen,Wand links innen,Wand rechts aussen 
				
				Wand rechts innen,Decke aussen,Decke innen,Boden aussen 
				
				Bodenausführung: KE11-Edelstahlboden (Werkstoff-Nr. 1.4301), 
				
				Kegelverpresst mit Längsschliff, an den Stoßstellen 
				
				spaltfrei, stufenlos unterlappt. Rutschfestigkeitsklasse R11. 
				
				zul. Radlast: 1000 N 
				
				Lastfläche: >4 cm² 
				
				Radwerkstoff: Gummirad 
				zul. Flächenlast: 30000 N/m² 
				
				1  Türelement 80 
				1 STK 
				
				Kühlzellen-Drehtür, zweiflügelig 
				Am 
				Türrahmen innen angebaut: LED-Leuchte 10 Watt (IP44) 
				
				(entspricht ca. der Leistung einer 100 Watt Glühlampe) 
				
				und Abzweigdose (IP66). 
				Im 
				Türrahmen außen eingebaut: Bedientableau mit Lichtschalter, 
				
				Thermometer und Druckausgleichsventil (geeignet bis zu einer 
				
				Kälteleistung von max. 5 KW). 
				
				Lichte Breite 1.900 mm 
				
				Lichte Höhe 1.900 mm 
				
				Wandstärke: 80 mm starke Wärmedämmung. 
				
				1004 7759801 2,100 M 
				Befestigungswinkel mit Deckblechunterbrechung 
				
				1 Kühlraumfenster 
				(Kunststoffrahmen weiß, feststehend) 
				
				mit Klemmrahmen für Einbau in Kühlzellen-Paneel 
				
				Wandstärke 100 +/-3 mm   
				
				Größe: 500 x 800 mm 
				
				2-fach verglast, unbeheizt 
				
				U-Wert: 3,0 W/m²K 
				
				beschlagfrei bis ca. 60% Luftfeuchte auf auf der warmen 
				
				Seite des Fensters bis delta t 25 Kelvin vorgesehen zum 
				bauseitigen nachträglichen Einbau 
				inkl. Montagebeipack 
				
				Ausschnitt für Fenster inkl. L-Verkleidung  und 
				Befestigungsbeipack 
				  
				
				1 
				
				Deckenaggregat CT 1200 mit Bedienfeld 
				
				Kompaktes, steckerfertiges Kühlaggregat mit elektronischer 
				
				Regelung und integrierter Tauwasserverdunstung. 
				
				Kälteleistung: 1150 W 
				
				Netzanschluss: AC 230 V / 50 Hz 
				
				Kältemittel: R 404 A 
				
				Kältemittelmenge: 1.200 g 
				
				Temperaturbereich: -5 bis +20°C 
				
				Abmessungen: 650 x 890 x 370 mm (BxTxH) 
				
				Oberfläche Aggregatgehäuse: SmartProtec® weiß, 
				
				antimikrobielle Beschichtung, ähnlich RAL 9016 
				
				Abzuführende Luftmenge bei Erhöhung der Umgebungstemperatur 
				um 
				5 K: 1250 m³/h 
				
				3006 7759798 1 STK 
				
				Montageöffnung für Viessmann-Deckenaggregat (NK/TK) 
				
				3008 7759799 1 STK 
				
				Anschlusskabel 4-polig, im Werk angebaut 
				An 
				der Verteilerdose des Türelements als Verbindung 
				
				zum Kühlaggregat vormontiert. 
				
				Dient als steckerfertige Stromversorgung des 
				
				Türelements. 
				
				Fernbedienung mit 5 m Kabellänge 
				
				für Aggregate mit elektronischer SD-Regelung 
				
				  
				
				Angebotspreis Zelle   
				  
				
				Angebotspreis Montage Zelle mit Fenster + Deckenaggregat  
				 
				  
				       Aussenbreite 2.100 
			mm Aussenlänge 2.400 mm Aussenhöhe 3.115 mm Zellentyp: Tecto Standard Plus Elementverbindung mit Nut/Feder und 
			Exzenter-Spannschlössern von innen zu betätigen (Innenmontage). Die Stöße der Wandelemente sind mit Tecto-Überlappung und damit besonders hygienisch. Die Ecken der Zellenwände sind innen mit einem 
			vollhygienischen Radius ausgeführt. Wandstärke: 100 mm starke Wärmedämmung der 
			Zellenelemente, Polyurethan-Hartschaum mit Cyclopentan geschäumt Wärmedämmung: Schaumdichte = 40 kg/m³ U-Wert 0,20 W/m² K gemäß DIN EN 13165 Smart Protec®, weiß, antibakt. Front aussen,Front innen,Rückwand aussen,Rückwand 
			innen Wand links aussen,Wand links innen,Wand rechts 
			aussen Wand rechts innen,Decke aussen,Decke innen Boden: Zelle ohne Boden. Befestigung der Wandelemente am bauseitigen Boden 
			mit PVC-Aufnahmerahmen . Länge Aufnahmerahmen: 9,00 m 1004 Türelement / Lukenelement 100 1 STK Kühlzellen-Drehtür Tecto Standard Plus, zweiflügelig Am Türrahmen innen angebaut: LED-Leuchte 10 Watt 
			(IP44) (entspricht ca. der Leistung einer 100 Watt 
			Glühlampe) und Abzweigdose (IP66). Im Türrahmen außen eingebaut: Bedientableau mit 
			Lichtschalter, Thermometer und Druckausgleichsventil (geeignet bis 
			zu einer Kälteleistung von max. 5 KW). Lichte Breite 1.600 mm Lichte Höhe 2.000 mm Wandstärke: 100 mm starke Wärmedämmung. TectoRefrigo CMC1 1300 mit 15m Fernbedienung Kompaktes, steckerfertiges Decken-Kühlaggregat mit elektronischer Regelung und integrierter Tauwasserverdunstung und Sicherheitsablaufanschluss Elektronischer Drehzahlregler für den Verflüssigerlüfter Montageöffnung für TectoRefrigo CMC / CMF und CT / FT Anschlusskabel mit Adapter zur Stromversorgung der Verteilerdose des Türelements Kabel lose - Länge 800 mm   
              
              
             1200x2400ob192195992019 Leichenkühlzellen im Rastermaß  
				  1200x 2400x 2410 mm hoch  
               Viessmann Zelle mit Evo Cool Aggregat    Leichenkühlzelle  
 
                Leichenkühlkombination  
				  
                 Kühlzelle für 12 Verstorbene mit je 3 Türen übereinander   Höhe 2,30 m 
					     
			Referenzen:
              Altenheim Bethlehem Tabea Wiehl 
			Friedhöfe
              Gummersbach, Bergneustadt , Marienheide ,Lindlar, Denklingen  
			Friedhofskapellen
              Schreibershof, Rothemühle , Müllenbach , Waldbröl , Seifen   
			Krankenhaus
              Gummersbach   
				                                       | Leichenkühlung Leichenkühlzelle
              Leichenkühlzellen Kühlzelle 
			Viessmann mit 1 Türe max 4 Särge  
              	übereinander 
				
				Zeichnung für Leichenkühlzellen 
			PDF Viessmann  
            Pathologiezellen      
			Pathologie_Prospekt_deutsch.pdf
			
														
											  
			 
				
					| 
				
|  | Leichen Kühlzelle Viessmann 
				 für 4 Särge ( Bei Nutzung von 2 
											 Sargdoppelwagen) 
			Lieferung als Bausatz einfach zu 
			montieren   Montage selbst oder durch Viessmann |  
| Viessmann tecto compact 80 mm
 Türseite 1,80 x 2,40 x 2,03 aussen ohne Boden
																										
		+ Aggregat WMC3 1000   netto € 
		6.790,-- 
		   + mwst
  
		25
 Türseite 1,80 x 
2,40 
                  x 2,33 aussen mit Boden    
		 
+ 
								Aggregat WMC3 1000 mit Aggregatausschnitt + 
		Ecktürstock   
		
netto € 7.450,--  
		
  + mwst
 
 alternativ
 
 von  
		Kide   Hersteller 
							mit Wand-Kühlaggregat ohne 
	Beleuchtung
							60 mm isolierte Zelle 
							Türseite  aussen 
							 
							
		1,72 x 2,30 x 2,03 o. Boden  
		
							  Türe 90/190 cm + Aggregat Ap 50 Huckepack Ausschnitt bauseits  
																										
																									
		
netto € 5.790,--  
		
  + mwst   
 von  
		Kide   Hersteller gleiche Zelle 
		mit Deckenaggregat 																								
																									
																										
		
netto € 6.390,--  
		
		
  + mwst 25
 
 Viessmann
 Türseite 
							  2,10 x 2,40 
                  x 2,03 aussen ohne . Boden+ 
		Aggregat WMC3 1000    netto € 
		6.990,-- 
  + mwst
 Türseite 2,10 x 2,40 
                  x 2,11 aussen mit Boden  
+ 
								Aggregat 
																								 
WMC3 1000  
 netto € 7.390,-- 
  + mwst
 
 | Leichenkühlzelle
		 ohne Boden für 4 Särge zum Einfahren  Viessmann mit 1 Türe  90 x 180 cm D.R. 
80 mm isoliert    in Version  
 compact 80   inkl  
		Viessmann Kälteaggregat Wand  WMC 
		1000  900 Watt  -5 bis+ 15 C 
, 
 gegen Mehrpreis  : Lichtschalter ,Thermometer,Druckausgleichventil , LEd Leuchte , 
		Aggregatausschnitt 
		bauseits an jeder Stelle an den 3 Seiten möglich 																										
																										
seitlich oder Rückseite
		€ 690,-- 
		   + mwst
  
		25
 
 
  
 Kide Iso 60 innen 1800x 2200
 |  
| Kide   
		Zelle 
							mit Wand-Kühlaggregat ohne 
	Beleuchtung
							60 mm isolierte Zelle 
							Türseite  aussen 
							 
							
		2,40 x 2,58 x 2,03 o. Boden  
		
							  Türe 90/190 cm + Aggregat Ap 50 Huckepack 
		oder  EMB1006M1XAusschnitt bauseits  
																										
																									
		
netto € 6.150,--  
		
  + mwst von  
		Kide   Hersteller gleiche Zelle 
		mit Deckenaggregat 																								
																									
																										
		
netto € 6.550,--  
  + mwst
 Kide   Zelle 
							mit Wand-Kühlaggregat ohne 
	Beleuchtung
							75 mm isolierte Zelle 
							Türseite  aussen 
							 
							
		2,43 x 2,39 x 2,03 o. Boden  
		
							  Türe 90/190 cm + Aggregat Ap 50 Huckepack 
		oder  EMB1006M1XAusschnitt bauseits  
		
																										
																									
																										
		
		netto € 6.250,-- 
		  + mwst
 von  
		Kide   Hersteller gleiche Zelle 
		mit Deckenaggregat 																								
																									
																										
		
		netto € 6.690,-- 
		  + mwst
 
 |  Kide Iso 60 innen 2280x 2460
 |  
|  |  |  
| 
 Türseite 2,40 x 2,70 x 2,04 aussen o. Boden
																								
+ Aggregat Rivaold  1000   netto € 
		6.190,--   + mwst
																									
23
 Türseite 2,40 x 2,70 
                  x 2,33 aussen o. Boden    
 
+ 
								Aggregat Rivacold 1000    
netto € 6.790,--  
  + mwst
 Türseite 2,70 x 2,40 x 2,04 aussen o. Boden
																								
+ Aggregat Rivacold 1000   netto € 
		6.190,--   + mwst
 Türseite 2,70 x 2,40 
                  x 2,33 aussen o. Boden    
 
+ Aggregat Rivacold  1000    
netto € 6.990,--  
  + mwst
 
 
 
 | Leichenkühlzelle
mit Türe mittig ohne Boden für 4 Särge zum Einfahren  Viessmann mit 1 Türe  80 x 180 cm D.R. 
80 mm isoliert  
in Version Compact 80 inkl  Viessmann Kälteaggregat Wand seitlich oder Rückseite WMC 900    900 Watt  -5 bis+ 15 C Kühlzelle
Tecto Compact  mit Viessmann Aggregat , Ohne Lichtschalter ohne Thermometer
ohne Druckausgleichventil ohne Türrahmenheizung  ohne LEd Leuchte
ohne Aggregatausschnitt ohne Verbindungskabel
 |  
| Türe Mittig 
auf 2,10 m 
 Türseite 2,40 x 2,70 x 2,04 aussen o. Boden
																								
+ Aggregat Rivacold  1000   netto € 
		6.690,--   + mwst
																									
235
 Türseite 2,40 x 2,70 
                  x 2,33 aussen o. Boden    
 
+ 
								Aggregat Rivacold 1000    
netto € 7.390,--  
  + mwst
 Türseite 2,70 x 2,40 x 2,04 aussen o. Boden
																								
+ Aggregat Rivacold 1000   netto € 
		7.690,--   + mwst
 Türseite 2,70 x 2,40 
                  x 2,33 aussen o. Boden    
 
+ Aggregat Rivacold  1000    
netto € 7.990,--  
  + mwst
 
 
 
 | Leichenkühlzelle
mit Türe mittig ohne Boden für 4 Särge zum Einfahren  Viessmann mit 1 Türe  80 x 180 cm D.R. 
80 mm isoliert  
in Version Compact 80 inkl  Viessmann Kälteaggregat Wand seitlich oder Rückseite WMC 900    900 Watt  -5 bis+ 15 C Kühlzelle
Tecto Compact  mit Viessmann Aggregat , Ohne Lichtschalter ohne Thermometer
ohne Druckausgleichventil ohne Türrahmenheizung  ohne LEd Leuchte
ohne Aggregatausschnitt ohne Verbindungskabel
 |  
|  |  |  
|  | Leichenkühlzelle 
mit Ecktürstock 
 mit/ohne Boden  Viessmann 
																										
																										
																										
																										
mit Huckepackaggregat neben der Türe  
   Mehrpreis  € 
																									790,-- 
+ mwst + Höhe 500 mm |  
|  | Leichenkühlzelle mit Ecktürstock 
mit/ohne Boden  Viessmann 
																										
																										
																										
																										
mit Huckepackaggregat neben der Türe 
		   Mehrpreis  € 
																									790,-- 
+ mwst + Höhe 500 mm |  
|   | Leichenkühlzelle 
mit/ohne Boden  Viessmann mit  
 Doppel Flügeltüre 
 180 x 210 cm D.R.
                    80 mm isoliert in Version Standard 80 plus   inkl Kälteaggregat Wand seitlich oder Rückseite WMC1 900  900 Watt . oder( Deckenaggregat CMC1 0900  MP € 
																										
		890,-- 
+ MWST  Höhe 450 mm plus Deckenausschnitt 
				+ Verbindungskabel MP € 240,-- )
 Zeichnungen für Leichenkühlzelle
 |  
|  | Leichenkühlzelle 
mit Boden  Viessmann mit  
 Doppel Flügeltüre
                      mit Steg 
 240 x 240 x 273 cm D.R.  
		mit je 1 Türe Din rechts und Din links 800x 2400 mm  
                    
																										
		80 mm isoliert in Version Standard 80 plus
 
 
 |  
|  | Leichenkühlzelle 
mit Boden  Viessmann mit 2 
		
		lügeltüre  und mit Trennwand für 2 getrennte 
		Temeraturen 270 x 240 x 211 cm D.R.-D.L  
		mit je 1 Türe Din rechts und Din links 900x 180 mm  
                    
																										
		80 mm isoliert in Version Standard 80 plus
 
 
 2700x ( mit 2 Türen a 900x1800  ) x Tiefe 
		2400 x 2110 mm mit Trennwand zum Nieten +2 Aggregaten netto
		€ 11.390,--   + mwst  
		24 2700x ( mit 2 Türen a 900x1800  ) x Tiefe 
		2400 x 2110 mm mit fester Trennwand +2 Aggregaten netto
		€ 11.990,--   + mwst  
		 3000x ( mit 2 Türen a 1000x1800  ) x Tiefe 
		2400 x 2110 mm  mit fester Trennwand +2 Aggregaten netto 
		€ 12.390,--   + mwst     |  
| Leichenkühlzelle ohne Boden   
		mit 
 
																										
																										 
		
Doppel Flügeltüre
                      
																										
																										
																										Türseite 1,80x2,40x2,04 m aussen o.
                      Boden + Aggregat WMC3 
		1000  
		 € 
		9.690,-- + mwst 24 
 | stärkeres Aggregat Wmc1 1300 
		€ 
		300,--  + mwst |  
| Leichenkühlzelle
                    																					mit  Boden 
		  mit 
		 
																										
																										 
		
Doppel Flügeltüre 
																										 
                      
                      Türseite 1,80x2,40x2,11 m aussen 
		
		+ Aggregat WMC3 
		1000  
		 € 
		9.990,-- + mwst | stärkeres 
Aggregat Wmc1 1300 
		€ 
		300,--  + mwst |  
| 
Leichenkühlzelle
                    ohne Boden   
mit  
																										
																										 
Doppel Flügeltüree 
  
                      																		
                      																		Türseite  2,40x2,40x2,04 m aussen + Aggregat WMC3 
1000  
 € 
		10.190,-- + mwst | stärkeres 
Aggregat Wmc1 1300 
		€ 
		300,--  + mwst |  
| Leichenkühlzelle
                    																		mit Boden 
		  mit 
		  
																										
																										 
		
Doppel Flügeltüre   
                      
                      Türseite 2,40x2,40x2,11 m aussen 
		
		  + Aggregat WMC3 
		1000  
		 € 
		10.990,-- + mwst | stärkeres 
Aggregat Wmc1 1300 
		€ 
		300,--  + mwst |  
| Leichenkühlzelle
                    ohne Boden mit   Doppel Flügeltüre
                      
                      Türseite
                2,40x2,70x2,04 m  aussen + Aggregat 
		Wmc3 1450   
		
		 € 
		11.390,--  
		+ mwst | stärkeres 
Aggregat Wmc1 1300 
		€ 
		300,--  + mwst |  
| Leichenkühlzelle
                    																		mit Boden  
		  mit  Doppel Flügeltüre
                      Türseite
                2,40x2,70x2,11 m  aussen+ Aggregat 
		  Wmc3 1450 																										
																										
		
																										
		€ 12.690,-- + mwst | stärkeres 
Aggregat Wmc1 1600 
		€ 
		500,--  + mwst |  
|  
 | Leichenkühlzelle Viessmann 2400 x 
			1800 x 2110 mm hoch mitTüre 1000 x 1800 mm mit Aggregat 
							neben 
			der Türe Leichenzelle 4 Särge a) 
							Mit Edelstahlboden
 
 b) ohne Bodenelemente
 |  
|  
 | Kühlzelle Viessmann   2400 
			x 2400 x 2340 mm hoch mit einer 2 flügeligen Türe 1900 x 1900 mm  
			Aggregat auf der Decke a) Mit Edelstahlboden
 
 b) ohne Bodenelement
 |  
| 
							 
							  
							  
							  | 
				  
				
				Leichen 
				Kühlzelle Edelstahl Boden für 4 Verstorbene  mit 2 Türen 750x 2000 mm hoch
 2100x 2400x 2410 mm hoch
 Angebotspreis
 Montage Zelle + Kälteanlage Zelle 14 m leitungsweg 
				 
				netto 
				9.350,-- + 
				mwst 24 |  
| 
				
				Viessmann Kühlzelle   
				
				Zellentyp: Tecto Standard Plus 
				
				Elementverbindung mit Nut/Feder und Exzenter-Spannschlössern 
				
				von innen zu betätigen (Innenmontage). 
				
				Die Stöße der Wandelemente sind mit Tecto-Überlappung und 
				
				damit besonders hygienisch. 
				
				Die Ecken der Zellenwände sind innen mit einem vollhygienischen 
				Radius ausgeführt. 
				
				Wandstärke: 80 mm starke Wärmedämmung der Zellenelemente, 
				Polyurethan-Hartschaum mit Cyclopentan geschäumt 
				
				Wärmedämmung: Schaumdichte = 40 kg/m³ 
				
				U-Wert 0,25 W/m² K gemäß DIN EN 13165 
				
				Smart Protec®, weiß, antibakt. 
				
				Front aussen,Front innen,Rückwand aussen,Rückwand innen 
				
				Wand links aussen,Wand links innen,Wand rechts aussen 
				
				Wand rechts innen,Decke aussen,Decke innen, | 
				
				Bodenausführung: KE11-Edelstahlboden (Werkstoff-Nr. 1.4301), 
				
				Kegelverpresst mit Längsschliff, an den Stoßstellen 
				
				spaltfrei, stufenlos unterlappt. Rutschfestigkeitsklasse R11. 
				
				zul. Radlast: 1000 N 
				
				Lastfläche: >4 cm² 
				
				Radwerkstoff: Gummirad 
				zul. Flächenlast: 30000 N/m² |  
|   
 
 |  |  
| a) Mit Edelstahlboden und mit Rampe | Ohne boden Kide Zelle mit Huckepackaggregat |  
| Auffahrrampen 7 Grad 
 Rampe für Kühlzellen mit Edelstahlblech
 
 Rampe 81 mm hoch 900x 700 mm 
			  
																					  
			  netto € 
                																	  680,-- + mwst
 
 Rampe 81 mm hoch 900x 900 mm 
																					  
			  netto € 
                																	  750,-- + mwst
 |  |  
|  |  |  
|  |  |  
|  |  |  
|  |  |  
|  |  |  
|  |  |  
|  | Viessmann Kühlzelle 120-240-211 mit Boden 
 
                  Tür kann auch in Din links gebaut werden |  
|  | lichte Türöffnung 900 mm   Isolierung 80 mm |  
							|  | Leichen Kühlzelle 
							2700x2400x 2030 mm ohne Boden mit 2 Schiebetüren und 
							Deckenaggregat ab € 
							12.000,-- + mwst 
							2023
 |  
|  | Loch ab Werk für Deckenaggregat 
 |  
| Kühlzelle für 4 Verstorbene 
					 Ohne Boden bedeutet , das die 
					Wände auf Ihren vorhandenen  Boden ( Fliesen, Beton, etc ) 
					in U Profilschienen montiert werden können. Hintergrund : Sie können dann mit 
					dem Transportwagen ebenerdig reinfahren. Mit Edelstahlboden teurer und Sie 
					brauchen dann eine Rampe . Das Kälteaggregat kann seitlich 
					montiert werden neben der Türe oder alle anderen 3 Seiten . Ich kannn Original passen zur 
					Zelle Viessmann auch Viessmann Aggregat anbieten.   Es gibt eine Maschine WMC 900 ( 
					reicht aus)   und eine die etwas stärker ist 1300  mit 
					2 Jahren rundum Sorglos Paket   
					 | 
		  Es gibt auch noch einen 
		anderen Hersteller Isobar Belgien mit Aggregaten aus Italien Cibin
		
																										
		mit 12 Monaten  Materialersatz Paket 
		 Beispiele für Zellen 
		Link 
		
		https://www.rauschenbach.de/Leichenkuehlung4.htm Montage bauseits einfach oder von uns aus 
		Bergneustadt LED ab 
		€ 850,--  
		 + 
		mwst  |  
| 
					 
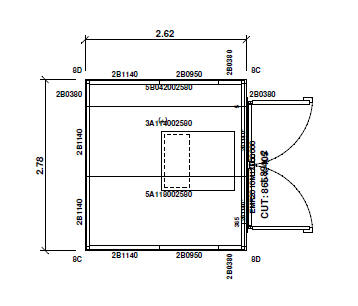
					 | alternativ Kide Spanien 
 Leichenkühlzelle
                    																		mit 
		Edelstahl Boden 
		  mit 
		  
																										
																										 
		
Doppel Flügeltüre   
                      
                      Türseite 2,78x2,62x2,15 m aussen mit 
		Huckepackaggregat Kide EMB1007M1X
					  + 
		€ 6.990,-- + mwst 
		23
 
 Ohne  Boden 
		 € 6.290,-- + mwst  
		 Mehrpreis mit 
		Deckeaggregat  € 450,-- 
		+ mwst  
		 
		 Ca 3 Wochen mit LKW aus Spanien , Stapler 
		bauseits  |  
					|  |  |  
					|  |  |  |  
					|  |  
					| Kühlzelle Viessmann  mit 2Türe 750 x 2000 mm mit Aggregat rückseitig |  
					|  |  
					| Kühlzelle Viessmann 2400 x 1800 x 2350 
            mm 
 |  
					|  |  
					|  |  
					|  |  
					|  |  
					|  |  
              
              
              |