Bierkoffer
 Bierkühlzelle 
Biertheken
RW

Biertheken
Hagola

Biertheken
Nordcap

Bottums
up Bierzapfen

Cocktailmaschine

Cocktailtheke

Eiswürfel
Fassbiertheke

Fassbox 
Fasskühlschrank 
Flaschenkühltruhe

Flaschentruhe V2A
Gaswarngerät Hausbar

Klapptheken

Kegliste

mobile
Theken
mobile
Cocktailbar
Schankanlagenverordnung
Schanktischabdeckung 
Weinkühltheke

Zapfsäule
Keramik
Zapfsäule
Metall 
Zapfsäulen
Trend 
Zeichnung
Hausbar
Bestellung auch unter
Shop.Rauschenbach
Hagola Cocktail-Station Modell Hinz Edelstahl
Diese Cocktail-Station wurde in Zusammenarbeit mit dem deutschen
Star-Bartender Stephan Hinz entwickelt. Sie ist als exklusives
Edelstahlmöbel für Bars, Szenelokale und die Eventgastronomie der
perfekte Mittelpunkt in Sachen Drinks, Show und Lifestyle.
Ausführung wie Abgebildet:
- Edelstahl (1.4301) gebürstet
- Tropfmulde inkl. Prismen-Lochplatte (Patentschutz) und
Schneidbrett
- eingebauter Gläserdruckspüler (zum auswaschen von Gläser,
Cocktailshaker usw.)
- untergestzte isolierte Wanne mit Lochblech / Schiebedeckel und
Trennwand (zur Trennung von Würfeleis und Crushed-Ice sowie zur
Kühlung von Flaschen)
- Restebecken
- Handwaschbecken
- Abfallschacht mit großem Auffangbehälter
- Wandanschluss (660 mm tief) oder mit umlaufender Abkantung (700 mm
tief)
Ausschnitt für 4 x GN 1/9, 100 mm tief (ohne GN-Behälter!)
Unterbau komplett in Edelstahl (1.4301)
- 3 offene Module mit Blende oben
- 2x Speedrack als Stellfläche für Flaschen
Maße:
als Wandanschluss (Hochkantung wie Bild): 1510 x 980 x 660 mm
mit umlaufender Abkantung: 1510 x 980 x 700 mm
Hagola Coktailstation Hawaii
Abmessungen: 1050 x 980 x
660 mm ( B x T x H ) auf Wunsch 880mm hoch, 700mm tief
Die Cocktailstation Modell Hawaii gehört als Grundmodell zum
Starterprogramm von Hagola Das Modell Hawaii ist aus
variablen Modulen zusammengestellt worden, lässt sich aber auf
Wunsch ihren Erfordernissen/ Bedürfnissen anpassen. Die Höhe und
Tiefe der Cocktailstation von Hagola sind den Abmessungen der
Hagola Kühltheken Serien wie Economy Class " , " Business
Class " und " First Class " bestens
angepasst und somit im Thekenbereich passend integrierbar.
Ausführung der Cocktailstation Hawaii
Arbeitsplatten:
- Nirosta (1.4301) Gebürstet
- eine Tropfmulde inkl. Prismen-Lochplatte und Schneidebrett
- eingebauter Gläserdruckspüler
- eine isolierte Wanne mit Lochblech und Trennwand (Trennung
Würfeleis und Crushed-Ice),
- Wandschluss (660 mm tief) oder mit umlaufender Abkantung
(700 mm tief)
- Zutatenbord für 5x GN 1/9, 100mm tief mit zusätzliche
Stellflähe für Flaschen,schräg 40°
Unterbauten :
- Nirosta ( 1.4301 ) Gebürstet
- 2 offene Module mit Blende oben und Einlegeboden unten
- Vorsatzblende als Stellfläche für Mixer und Flaschen
HCS HAGOLA-COCKTAILSTATIONEN UND -THEKEN FÜR
GASTRONOMIE UND BAR
Für mehr Komfort, Effizienz und Spaß beim Mixen
Unsere Cocktailstationen sind mit einer Vielzahl an praktischen
Modulen, individuellen Ausstattungsmöglichkeiten und Zubehör der
ideale Arbeitsplatz für Barkeeper. Flexibilität, Ergonomie am
Arbeitsplatz und optimal angeordnete Stationselemente stehen
hier für Arbeitskomfort, Effizienz und Spaß am Mixen von
erstklassigen Drinks.
IHRE PRODUKTVORTEILE IM ÜBERBLICK
besonders ergonomisch angeordnete Stationselemente
verschiedene Modelle und Größen (7 Grundmodelle)
modulare Bauweise mit nahtloser Arbeitsplatte
viele verschiedene Ausstattungsmöglichkeiten und umfangreiches
Zubehör
ungekühlte Module
individuelle Maßanfertigungen auf Anfrage
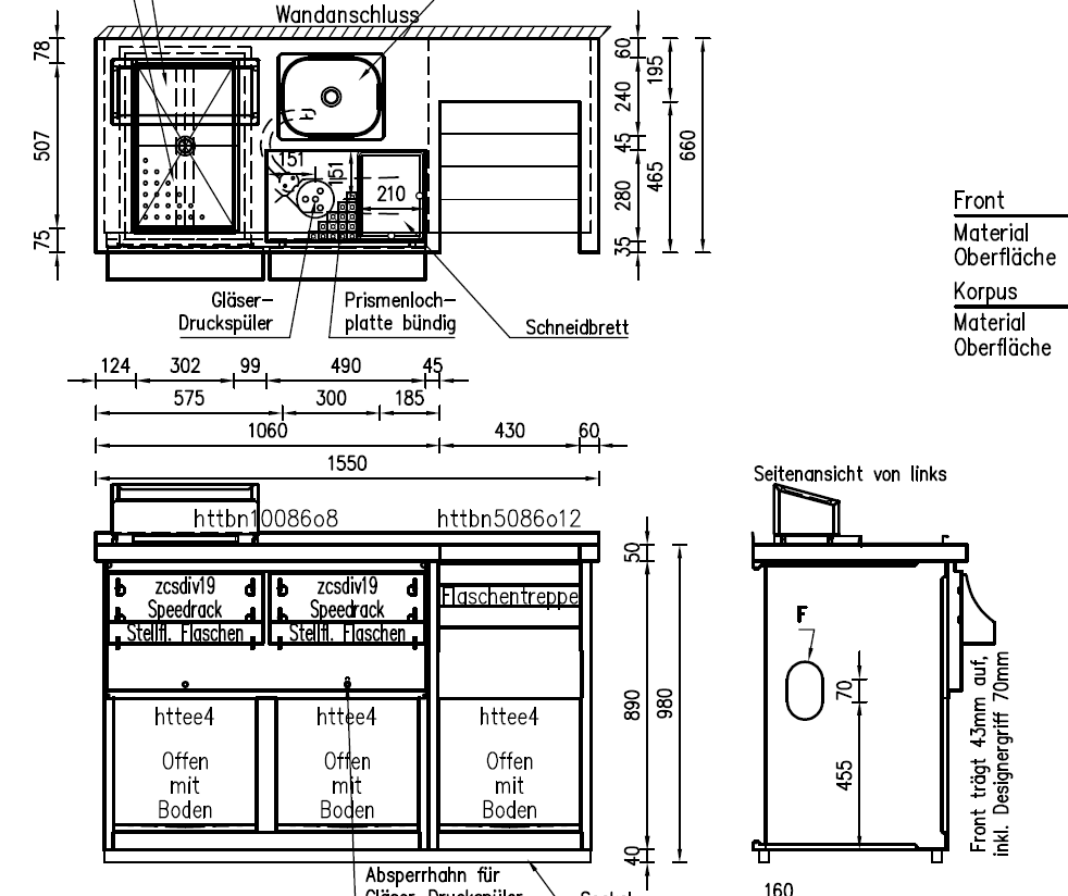
HAGOLA-Cocktailstation (HCS) 'Arizona'
Abm.: 1550 x 980
x 660 mm (BxHxT), bestehend aus:
Arbeitsplatte
(HAP), Edelstahl (1.4301) gebürstet,
50 mm stark,
Wandanschluss gastseitig
Untergesetzte,
isolierte Wanne (HEW)
mit
Schiebedeckel,
Lochblech und Trennwand.
Tropfmulde 490 x 280 mm, mit Prismen-Lochplatte,
Schneidbrett und eingebautem Gläserdruckspüler
mit Absperrhahn.
GN-Behälter 200
mm tief, mit gelochtem Einsatz,
Ablauf mit
Edelstahlventil 1 1/4',
Aufsatzboard
schräg (15°) f. 4x GN 1/9,100 mm tief
Abmessungen: 452 x 186 x 200 mm (BxHxT)
mit Stellfüßen.
Unterbau: 1500 x
890 x 600 mm
Korpus:
Edelstahl (1.4301) gebürstet.
Front :
Edelstahl (1.4301) gebürstet.
Bedienungsseitig
von links nach rechts:
Offenes Modul
1000
mm,
Beckenblende
mit zwei eingehängten Speedracks
als Stellfläche
für Flaschen,
Trockentheke 500
mm, oben Flaschentreppe mit
4 Etagen, unten
offen.
Sockelschiene:
40 mm Höhe.
Einlegeboden für Cocktailstation,
500/1000 x 790/890 x 600 mm
Material :
Edelstahl 1.4301,
Oberfläche : gebürstet
Option
Grundausführung für Barbrett mit Frontverkleidung,
Material : Edelstahl
1.4301,
Oberfläche: Leinenstruktur
lfdm. Barbrett mit Frontverkleidung
und linke und rechte Seitenverkleidung.
Material : Edelstahl
1.4301
Oberfläche: Leinenstruktur |
Austattungsmerkmale:
Isolierte Kühlwanne für Crushed ice und Würfeleis Gläserdruckspüler Ausgußbecken Schneidbrett Mulde mit
Prismenlochplatte Abfallschacht Zutatenbord Früchtebord
Flaschentreppe Cocktailtheke
Sondermodell Florida mit Verkleidung
|
Florida Cocktail von Rieber
 |
| Florida Cocktail von Rieber
|
|
 |
Florida in Sonderbau mit steckbarem Barbrett ab €
8.900,-- + mwst 23 |
 |
links Glatt , dann treppe dann Prismenplatte +
Zutatenbord dann Becken |
| |
|
 |
Florida in Sonderbau mit Eiswanne Blech mit Dusche
Treppe und Becken ab € 8.900,-- + mwst 21 |
| Cocktailtheke_mit_eiswanne_Becken |
|
 |
Mit Rollen und Front + Seitenverkleidung |
 |
Hagola Cocktailtheke |
| Hagola Cocktailtheke |
|
 |
Hagola Cocktailtheke |
 |
|
Hagola Messetheke
Cocktailtheke Hagola |
|
 |
Hagola Messetheke
Cocktailtheke Hagola Sonderbau 2 mal
Eiswannen
2
Cocktailtheke Biertheke Hagola Sondermodell Florida Saas
Fee
|
 |
Cocktailtheke Biertheke Hagola Sondermodell
Florida Saas Fee € 8.800,-- + mwst 21 |
 |
Modell Hinz mit Barbrett |
 |
 |
 |
HAGOLA-Cocktailstation (HCS) "Florida" Abm.: 2050 x
980 x 660 mm (BxHxT), bestehend aus: Arbeitsplatte
(HAP) Edelstahl (1.4301) gebürstet, 50 mm stark,
Wandanschluss gastseitig Untergesetzte, isolierte Wanne
(HEW) mit Schiebedeckel,Lochblech und Trennwand.
Tropfmulde 420 x 350 mm, mit Prismen-Lochplatte,
Schneidbrett und eingebautem Gläserdruckspüler.
GN-Behälter 200 mm tief, mit gelochtem Einsatz, Ablauf
mit Edelstahlventil 1 1/4", Aufsatzboard für 5 x GN
1/9, 100 mm tief und zusätzliche Stellfläche für
Flaschen, schräg (40°) mit Stellfüßen. Unterbau:
2000 x 890 x 600 mm Korpus: Edelstahl (1.4301)
unbehandelt, Front : Edelstahl (1.4301) gebürstet.
Bedienungsseitig von links nach rechts: Offenes Modul
1000 mm, Beckenblende mit zwei eingehängten Speedracks
als Stellfläche für Flaschen, Trockentheke 500 mm, oben
Flaschentreppe mit 4 Etagen, unten offen.
Trockentheke 500 mm, oben Blende, unten offen.
Sockelschiene: 40 mm Höhe. Einlegeboden für
Cocktailstation, 500 mm 1000x790/890x600mm Material
: Edelstahl 1.4301 Oberfläche : gebürstet |
 |
|
 |
Winkel Cocktail Winkellösung mit
2 Cocktailstationen 1 x HAGOLA-Kühltheke (HKT)
Business-Class, steckerfertig, 890 mm Höhe, Front:
Edelstahl (1.4301) gebürstet, bedienungsseitig von links
nach rechts Mit 4 Zügen und Aggregat steckerfertig +
Trocken Cocktailtheke mit Speedracks s, Skizze 2500 mm
€ 1 x HAGOLA-Kühltheke (HKT) Business-Class,
steckerfertig, 890 mm Höhe, Front: Edelstahl (1.4301)
gebürstet, bedienungsseitig von links nach rechts Mit 8
Zügen und Aggregat steckerfertig + Trocken Cocktailtheke
mit Speedracks + Trockenteil s, Skizze 4100 mm
1 x HAGOLA-Winkelschanktisch-Abdeckung (HSA) Material :
Edelstahl (1.4301) Oberfläche : gebürstet Abmessungen :
4500 x 5500 x 660 mm HW-becken : 1 Stück 240 x 340 x 150
mm mit Edelstahlventil 1 1/2", mit Überlauf Mulde :
1540 x 280 mm mit Prismenlochplatten Ausschnitte : für
u.g. Wannen incl. Einsetzen von oben, verklebt Wulst :
50 mm Hochkantung : 37 mm / gastseitig Trägerplatte :
Spanplatte E1 P3/Massivholz Edelstahlwanne
"Aargau" GN 2,5/1 mit Auflagerand Abmessung : 892 x 345
x 610 mm (BxHxT) Ausschnittmaß: 872 x 590 mm nutzbare
Innenmaße: 792 x 300 x 510 mm Auflagerand und Innenkorpus
in Edelstahl (1.4301) gebürstet, Boden mit Gefälle zum
mittig angeordneten Ablauf 1 1/4", Außenkorpus in
Edelstahl, fugenlose Druckschäumung. mit Lochplatte 1
Edelstahlwanne "Aargau" GN 2,5/1 mit Auflagerand mit
Trennwand a 2 Arretierter Schiebedeckelsatz für 2,5
x GN 1/1 f. Cocktailstation "Georgia" u. "Virginia"
Material : Edelstahl Oberfläche : gebürstet Maße : 533
x 568 x 26 mm a
|
 |
cocococktail |
| |
|
| |
|
 |
|